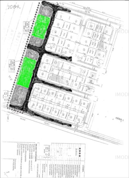
TEREN DE VANZARE, 543MP, ZONA ORICE ZONA, MOSNITA VECHE


Pret vanzare: 6.516 EUR
Pret vanzare pe mp: 12 EUR/mp
Localizare: Mosnita Veche
Caracteristici
  • Suprafata teren:543 mp
  • Tip teren:constructii
  • Front Stradal:17 m
  • Clasificare Terenintravilan
  • Nr. Fronturi1
  • Constructie pe teren:---
  • Data actualizare:17-10-2011
Detalii

Alte detalii: sau 730 MP-servicii +689 mp -sp.verde = TOT= 1419 mp, pe colt =6,5 E/mp; curti constructii integral, puz 2008

Acte avize: Scoase din circuitul agricol

Pretul este negociabil


Destinatie: rezidential


Specificatii

Utilitati:

  • Utilitati in zona.

Alte caracteristici:

  • Oportunitate de investitite

Alte Detalii Zona:

  • Amenajare strazi (de pamant).